בר יהודה -39 נשר
[email protected]
0547225666
Facebook
Instagram
LinkedIn
דף הבית
אודותינו
השירותים שלנו
איזורי שירות
מודד מוסמך בחיפה
מודד מוסמך בחיפה
מודד מוסמך בנשר
גלריה
סרטונים
בלוג
יצירת קשר
צור קשר בוואטסאפ
מדידת חזיתות 1
מדידת חזיתות 1
Image Slide 1
מדידת חזיתות 2
Image Slide 3
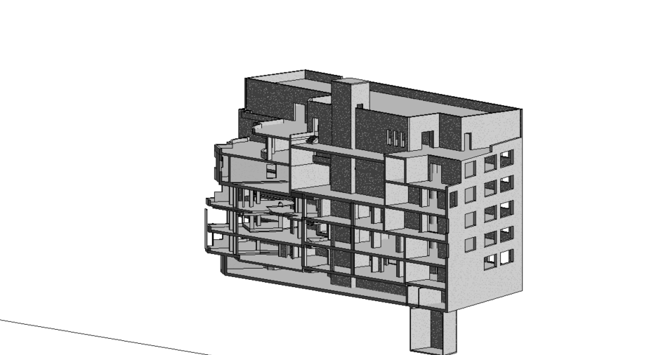
מידול תלת-ממדי מדויק ב-Revit ו-SketchUp –
מדידת חזיתות 1
מדידות אדריכליות
מדידת חזיתות 1
מדידות טופוגרפיות
מדידות למפות מפורטות
מדידות למפות מפורטות
מדידות למפות מפורטות 2
מדידות למפות מפורטות2
מדידות לצרכי רישום והסדר מקרקעין
מדידות לצרכי רישום והסדר מקרקעין
מדידות לתיעוד ושימור
מדידות לתיעוד ושימור
מדידות מצב קיים לצורך היתר בנייה
מדידות מצב קיים לצורך היתר בנייה
מדידות שטחים לצורך ארנונה
מדידות שטחים לצורך ארנונה
מיפוי אווירי ותצלומי אוויר 2
מיפוי אווירי ותצלומי אוויר 2
תשריט בית משותף
תשריט בית משותף